Deutsch
Onder optie:De Spinnekop 2, 8748 BG Witmarsum - Foto
Onder optie
+27

De Spinnekop 2 8748 BG Witmarsum € 439.000,- k.k.

  • Woonhuis
  • 4 kamers
  • 3 slaapkamers
  • 1 badkamers
  • Bouwjaar 1994
  • 367 m² perceeloppervlakte
  • 128 m² gebruiksoppervlakte
  • B Energielabel B

Beschrijving

Vrijstaande levensloopbestendige woning met ruime garage en zonnige, beschutte tuin.
In een rustige en prettige woonwijk van Witmarsum staat deze uitstekend onderhouden, vrijstaande levensloopbestendige woning (semi-bungalow) met garage en een heerlijk beschutte tuin. De ligging is ideaal: op loopafstand van open vaarwater, zwembad, tennisbanen en supermarkt. Een comfortabele woning waar gelijkvloers wonen perfect wordt gecombineerd met extra ruimte op de verdieping.

Indeling:
Via de centrale entree komt u in de hal die toegang biedt tot alle vertrekken. Aan de linkerzijde bevindt zich de lichte woonkamer met openslaande deuren naar het zonnige terras. Hier geniet u in alle rust en privacy, beschut achter het windscherm – een heerlijke plek om buiten te zitten.
Aan de rechterzijde van de hal ligt de keuken, overdag het kloppend hart van de woning. Deze is uitgerust met een diep aanrechtblad en moderne inbouwapparatuur zoals een inductiekookplaat, afzuigkap, combi-oven, koelkast, close-in Boiler en vaatwasser.
Aan de achterzijde van de woning bevindt zich de comfortabele tweepersoonsslaapkamer met aansluitend de badkamer. De badkamer is voorzien van een douchecabine, wastafelmeubel en een tweede toilet. De aangrenzende garage is binnendoor bereikbaar via de keuken en is multifunctioneel te gebruiken, bijvoorbeeld als hobbyruimte. Hier vindt u tevens de aansluiting voor de wasmachine.
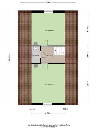
Eerste verdieping:
De overloop geeft toegang tot twee ruime slaapkamers, beide voorzien van een eigen wastafel. Tussen de slaapkamers bevindt zich een praktische berging met de opstelling van de cv-ketel.

Algemeen:
De woning staat op een perceel van 375 m² eigen grond en is gebouwd in 1994. De woning bevindt zich in een goede staat van onderhoud en is in september 2025 buitenom geschilderd. Er is sprake van goede isolatie (muur-, dak- en vloerisolatie) en houten kozijnen met dubbele beglazing. Het energielabel is B. In 2024 zijn 12 zonnepanelen geplaatst met een piekvermogen van circa 5.000 kWh, evenals een elektrische boiler. Deze duurzame verbeteringen zijn nog niet verwerkt in het energielabel. Daarnaast is er een waterontharder geplaatst. De woning is keurig onderhouden en in september 2025 buitenom geschilderd. Kortom; direct instapklaar.

Witmarsum ligt gunstig op slechts 15 minuten van Harlingen en 5 minuten van de A7/Afsluitdijk, waardoor zowel rust als bereikbaarheid perfect samenkomen.

Wilt u deze fijne woning zelf ervaren?
Maak dan een afspraak voor een bezichtiging en laat u verrassen door de ruimte, het comfort en de prettige ligging.

Kaart

Kenmerken

Overdracht

Referentienummer
00192
Vraagprijs
€ 439.000,- k.k.
Status
Onder optie
Aanvaarding
In overleg
Aangeboden sinds
Vrijdag 16 januari 2026
Laatste wijziging
Maandag 2 februari 2026

Bouw

Type object
Woonhuis, eengezinswoning, vrijstaande woning
Soort bouw
Bestaande bouw
Toegankelijkheid
Mindervaliden
Senioren
Bouwperiode
1994
Dakbedekking
Dakpannen
Type dak
Zadeldak
Isolatievormen
Dakisolatie
Muurisolatie
Vloerisolatie

Oppervlaktes en inhoud

Perceeloppervlakte
367 m²
Woonoppervlakte
128 m²
Inhoud
450 m³
Oppervlakte overige inpandige ruimten
22 m²

Indeling

Aantal bouwlagen
2
Aantal kamers
4 (waarvan 3 slaapkamers)
Aantal badkamers
1 (en 1 apart toilet)

Tuin

Type
Zijtuin
Hoofdtuin
Ja
Oriëntering
Zuid-west
Heeft een achterom
Ja
Staat
Goed onderhouden

Energieverbruik

Energielabel
B

CV ketel

Warmtebron
Gas
Combiketel
Ja
Eigendom
Eigendom

Uitrusting

Aantal parkeerplaatsen
1
Warm water
CV-ketel
Elektrische boiler
Verwarmingssysteem
Centrale verwarming
Ventilatie methode
Natuurlijke ventilatie
Badkamervoorzieningen
Douche
Toilet
Wastafelmeubel
Parkeergelegenheid
Aangebouwde stenen garage
Heeft kabel-tv
Ja
Tuin aanwezig
Ja
Heeft een garage
Ja
Telefoonaansluiting aanwezig
Ja
Beschikt over een internetverbinding
Ja
Heeft zonnepanelen
Ja

Kadastrale gegevens

Kadastrale aanduiding
Súdwest-Fryslân B 3368
Perceeloppervlakte
367 m²
Omvang
Geheel perceel
Eigendomsituatie
Eigen grond

Brochure(s) en overige bijlagen

De Spinnekop 2, 8748 BG WITMARSUM (2) Download
De Spinnekop 2, 8748 BG WITMARSUM (3) Download